"tecnici di laboratorio"

gestione delle strutture informatiche della scuola
sei in Istituto Comprensivo - pagina dei tecnici di laboratorio
con l'anno scolastico 2015/16 l'attività di manutenzione delle strutture informatiche e del sito ad opera degli alunni "tecnici" non viene più effettuata

aprifila e chiudifila

In caso di avacuazione della scuola ogni classe ha gli alunni incaricati di condurre al sicuro i compagni.

elenco dei capifila e chiudifila

modelli di pagine

principale
modello della pagina a due colonne utilizzata per la home page del sito

indirizzi
modello della pagina a due colonne utilizzata per le pagine degli indirizzi e dei settori di lavoro

lavoro
modello della pagina ad una colonna utilizzata per pubblicare le attività degli alunni

galleria
modello della pagina ad una colonna utilizzata per le gallerie fotografiche

tecnici di laboratorio a.s. 14/15

I tecnici di laboratorio si occupano della manutenzione delle apparecchiature informatiche, della gestione della rete, dell'impaginazione in HTML e della pubblicazione sul sito.
L'attività è su convocazione tramite email. Il giorno di attività è, in genere, il venerdì pomeriggio.
Nel secondo quadrimestre i tecnici di terza sono esonerati dai loro incarichi perchè impegnati nei progetti di fine anno

per i nuovi tecnici ------------------------------------------------
- tecnici ... come e perchè, riflessioni sul ruolo dei tecnici (scarica)
- "contratto" dei tecnici, richiesta di entrare nel gruppo dei tecnici (scarica)
- questionario per i tecnici (scarica)
- modulo da compilare sull'intervallo mensa (scarica)
--------------------------------------------------

presenze dei Tecnici 12/13 sett/febb (scarica) febb/aprile (scarica) maggio (scarica) giugno (scarica)
presenze dei Tecnici 13/14 agosto (scarica) sett/dic (scarica) dic/mar (scarica) mar/mag (scarica) // 2H - riordino materiali (scarica)

i tecnici ............................ gli ex tecnici

3H - Agostini Milena, Ardu Andrea, Ezechieli Matteo, Gaudio Roberto, Giandrini Cristiano, Profili Pietro di - Aloni Sofia, Caronna Cecilia sono impegnati come tutor
2H - Damascelli Andrea, Faelli Flavio, Fazioli Riccardo, Matteucci Petra, Paladini Niccolò, Pedrotti Matteo, Pennino Gabriele, Rossaro Andrea, Sergi Niccolò, Guglielmi Massimo

as 2014/15 presenze dei tecnici ......... interessi e competenze: seconda / terza

incarichi e servizi ... con il 2° quadrimestre sono a carico dei tecnici di seconda H ... pagina delle attività

manutenzione ordinaria e manutenzione straordinaria
- nei laboratori controllo delle reti interne, gestione antivirus, deframmentazioni, posta sui server - manuale di manumenzione ordinaria
- formattazioni e installazioni dei computer, sostituzione dei componenti difettosi, manuale di manutenzione straordinaria
Matteucci Petra, Sergi Niccolò, Pedrotti Matteo, Pennino Gabriele

gestione dei materiali di robotica - organizzazione e gestione del materiale di robotica e sua riparazione, gestione del materiale elettrico, smontaggio dei vecchi computer, recupero/smaltimento dei componenti
Pedrotti Matteo e Pennino Gabriele, Guglielmi Massimo

sicurezza e controllo - gestione del firewall, controllo e gestione della rete di scuola e degli indirizzi IP, gestione della documentazione, aggiornamento manuale ZyXEL
Damascelli Andrea, Pedrotti Matteo di 2H

sito della scuola (vice webmaster) - videoconferenze
- gestione del sito (divonasperi.it), del canale you tube della scuola, delle videoconferenze sulla rete di scuola
Paladini Niccolò, Damascelli Andrea e Rossaro Andrea

google apps
- gestione del sito (divona.it), e del dominio di Google Apps
Damascelli Andrea, Paladini Niccolò, e Rossaro Andrea

community Accarosso
- moderatori della community di 2H
Sergi Niccolò, Matteucci Petra

accensione calcolatori lab4 -
Guglielmi Massimo di 2H

sito di Angelo Elli - //

-------------------------------

materiale di documentazione
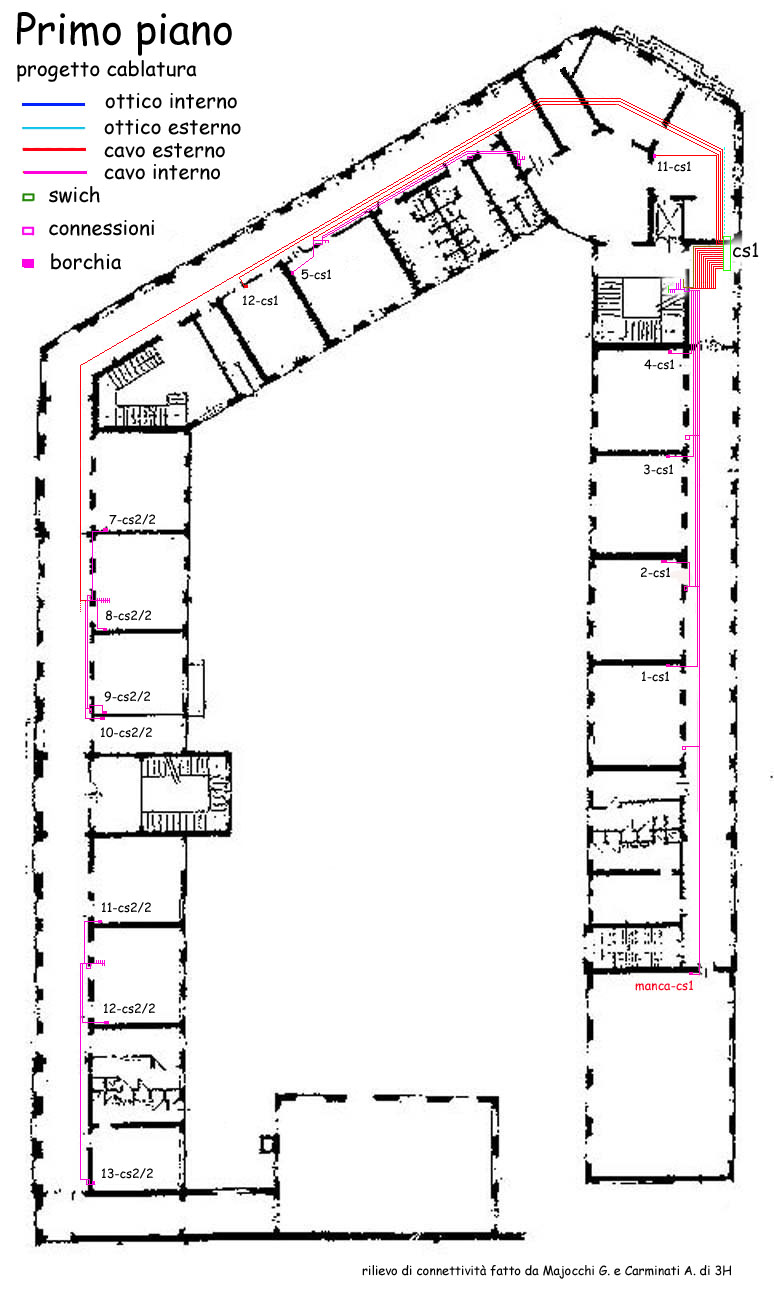
mappa della rete di scuola'14 (scarica)
mappa del laboratorio di Tecnologia (3° piano) (scarica)

documentazione tecnica

cablatura per la scuola elementare (sinistro) (destro)
nuova cablatura della scuola ... mappe ... terra .... primo .... secondo .... terzo
procedura per le installazioni (scarica) .... esempio monitor (immagine)
procedura per le manutenzioni (scarica) .... 32 o 64 bit? (collega)
risoluzione problemi sulla LIM (scarica)
collegamenti tra server e postazioni di lavoro (scarica)
modalità provv (scarica) ....... modalità provv w7 (scarica) ...... duplicazione monitor (collega)
casella di posta xp (scarica) ................. casella di posta w7(scarica)
videoconferenze - istruzioni (scarica) .... videoconferenze - schema rete scuola (scarica)
win7 - visibilità del computer e condivisione delle cartelle (scarica)
win7 - nome del computer e gruppo di lavoro (scarica)
uso radioT40 (scarica)

assistenti di laboratorio

Gli assistenti di laboratorio sono quegli alunni, due per classe, incaricati di supportare gli insegnanti e i compagni nell'utilizzo dei laboratori di informatica

 

tecnici - foto e documentazione